THIẾT KẾ PHÒNG NGỦ CON TRAI CON GÁI TẠI TẦNG 3 NHÀ PHỐ 3 TẦNG
Giải pháp không gian riêng cho từng cá tính – sử dụng bền vững lâu dài
Thiết kế Tầng 1: Khách – bếp >>> Xem ngay
Thiết kế Tầng 2: 2 Ngủ Master >>> Xem ngay
1. Vai trò của thiết kế phòng ngủ cho con trai con gái trong nhà phố
Trong nhà phố nhiều tầng, phòng ngủ cho con không chỉ là nơi nghỉ ngơi mà còn là không gian học tập, phát triển cá tính và hình thành thói quen sống. Việc bố trí phòng cho con tại tầng 3 giúp tách biệt khỏi khu sinh hoạt chung, tạo sự yên tĩnh và riêng tư cần thiết.
Thiết kế phòng ngủ con trai con gái đúng ngay từ đầu sẽ giúp không gian dễ sử dụng theo từng giai đoạn phát triển, hạn chế phải cải tạo, sửa chữa khi con lớn lên.

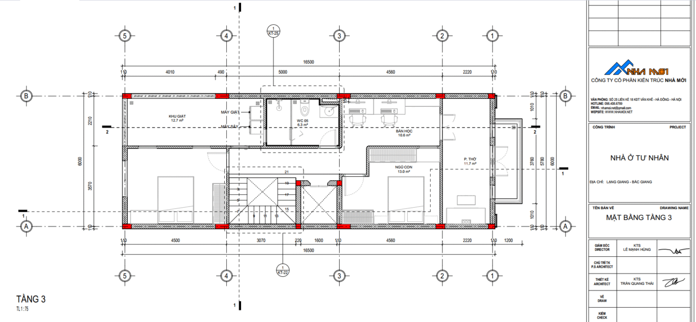
2. Giải pháp bố trí hai phòng ngủ cho bé tại tầng 3
Tầng 3 được bố trí hai phòng ngủ độc lập, mỗi phòng đều có ánh sáng tự nhiên, thông thoáng và lối tiếp cận thuận tiện từ trục giao thông chung. Cách phân chia này giúp mỗi bé có không gian riêng, đồng thời vẫn đảm bảo sự gắn kết trong sinh hoạt gia đình.
Thiết kế ưu tiên bố cục gọn gàng, hạn chế chi tiết rườm rà, đảm bảo an toàn và dễ vệ sinh – đặc biệt phù hợp với nhà phố.
3. Thiết kế phòng ngủ bé trai – hiện đại, linh hoạt
Phòng ngủ bé trai được thiết kế theo phong cách hiện đại, hướng đến sự năng động và linh hoạt. Bảng màu trung tính kết hợp điểm nhấn nhẹ giúp không gian không bị “trẻ hóa” quá mức, dễ điều chỉnh khi bé lớn hơn.
Nội thất được bố trí khoa học, đảm bảo đầy đủ các khu vực cơ bản như nghỉ ngơi, học tập và lưu trữ, giúp căn phòng vận hành hiệu quả trong thời gian dài.
4. Thiết kế phòng ngủ bé gái – nhẹ nhàng, cân bằng
Phòng ngủ bé gái mang tinh thần nhẹ nhàng, ấm áp với cách phối màu dịu và ánh sáng mềm. Không gian được thiết kế hài hòa, tạo cảm giác dễ chịu, phù hợp cho cả nghỉ ngơi và học tập hàng ngày.
Cách xử lý nội thất tập trung vào sự gọn gàng, tránh chi tiết cầu kỳ để căn phòng luôn thoáng và dễ sử dụng, đồng thời vẫn giữ được nét riêng cho từng cá tính.
5. Nguyên tắc chung khi thiết kế phòng ngủ con trai con gái tại tầng cao
-
Ưu tiên ánh sáng tự nhiên và thông gió
-
Thiết kế nội thất linh hoạt, dễ thay đổi theo độ tuổi
-
Màu sắc trung tính làm nền, tránh xu hướng ngắn hạn
-
Bố trí an toàn, hạn chế góc cạnh và chi tiết khó vệ sinh
Những nguyên tắc này giúp phòng ngủ cho con không chỉ đẹp ở thời điểm bàn giao mà còn phù hợp trong suốt quá trình sử dụng lâu dài.
6. Dịch vụ thiết kế nhà phố tối ưu công năng cho từng thành viên
Chúng tôi tư vấn và thiết kế phòng ngủ cho trẻ dựa trên nhu cầu thực tế của gia đình, đồng bộ với kiến trúc tổng thể của ngôi nhà. Hồ sơ thiết kế chi tiết giúp thi công đúng ngay từ đầu, hạn chế phát sinh chi phí về sau.
👉 Nếu bạn đang tìm giải pháp thiết kế phòng ngủ cho con trong nhà phố 3 tầng, hãy liên hệ để được tư vấn phương án phù hợp diện tích, thói quen sinh hoạt và định hướng sử dụng lâu dài cho gia đình.
Bỏ qua nội dung




















Đánh giá
Chưa có đánh giá nào.